Coming soon to Streethay
Register your interest for our upcoming Streethay development, The Choristers, opening later this year.
Whilst you wait
You can explore showhomes across the country, in the comfort of your own home
The Choristers
Morgan Mews, Lichfield, Streethay, WS13 8WN
Coming Soon
The Choristers is an exciting new development of 2, 3, 4 & 5 bedroom homes coming soon to Streethay, Lichfield.
Lichfield is a thriving city with a diverse mix of shops, restaurants, cafes and bars, around half an hour from both Stafford and Birmingham.
All of our homes are energy efficient, saving you on average £979 a year on your energy bills according to the latest research from the HBF.
We have now achieved planning permission and our first homes are due to be released for sale in autumn 2025. Register your interest to receive exclusive news and updates ahead of the launch, including our launch event invite.
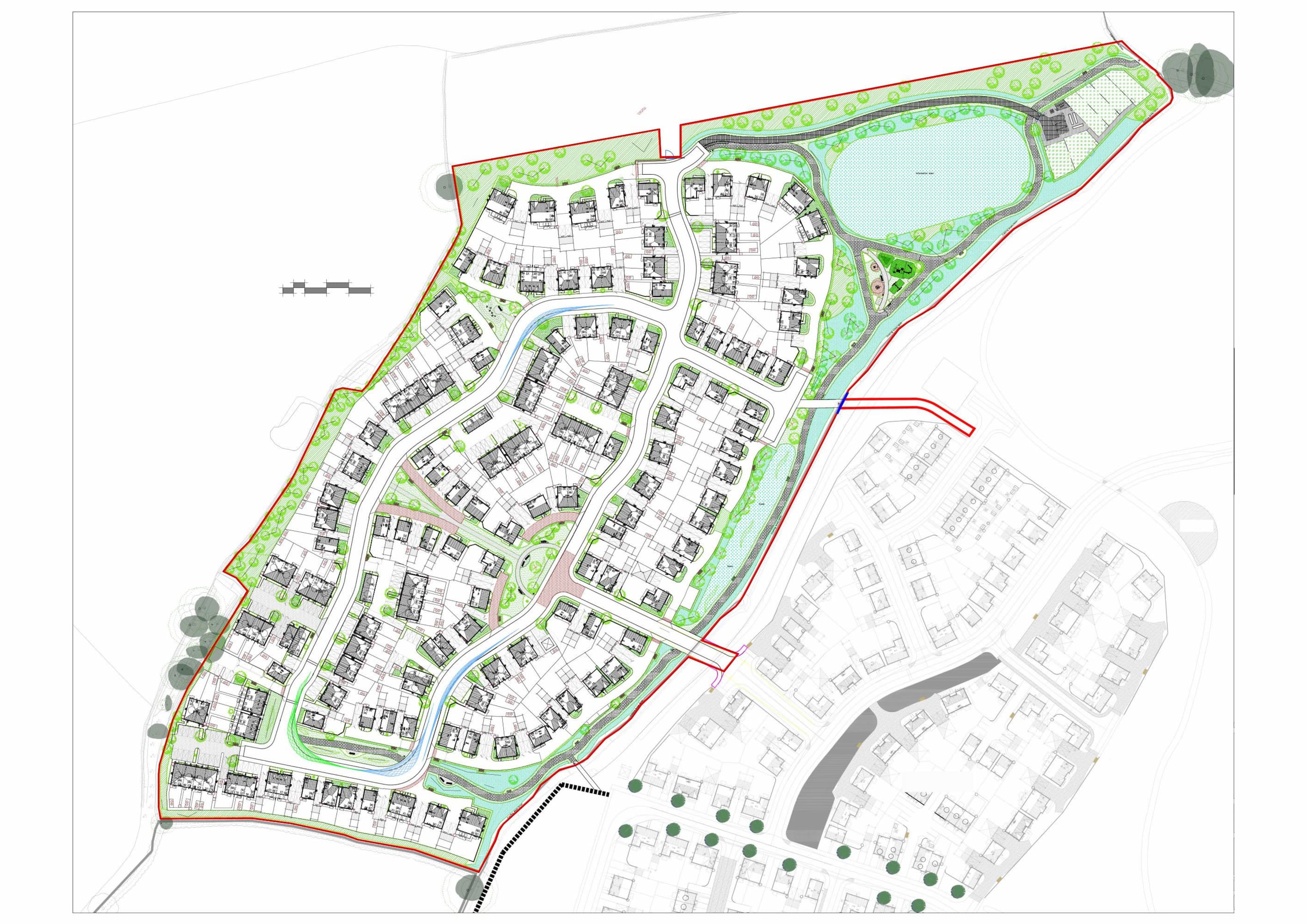
The Choristers{{' '}}Siteplan
Explore the development with our interactive siteplan which you can drag and click on to find out more. You can also use the filters below to help you narrow down your search for your perfect home.

Homes{{' '}}at The Choristers
Take a look at the selection of homes we currently have available. Make sure to register with us to be notified for future releases.
Check back soon for more information about our homes
{{titlePrefix}} {{title}}
{{item.title}}

Specification
When it comes to getting the details right, we're committed to quality throughout. We only work with high-quality brands, for example Symphony for kitchens and Ideal Standard for sanitary-ware.
From sleek, designer kitchens to cool, contemporary bathrooms, down to the fine details of tiles and taps, there's plenty to fire your imagination and suggest a whole range of possibilities for you to create a unique living environment.
Please note: Specification choices are dependent on build stage at the time of reservation.
Additional Information
All of our homes are covered by a 2 year Miller Homes and 10 year NHBC warranty.
Local{{' '}}Amenities
Explore the local area around The Choristers
How much{{' '}} will it cost?
Our handy tools can help you to understand how much you need to budget for your new home.
Speak to one of our Independent Financial Advisers for more information on all the latest mortgage products available.
YOUR HOME MAY BE REPOSSESSED IF YOU DO NOT KEEP UP THE REPAYMENTS ON YOUR MORTGAGE OR ANY OTHER DEBT SECURED ON IT. Miller Homes do not provide mortgages and this information is only a guide. More information would be required in a mortgage application and advice should be sought from an Independent Financial Advisor.
Cost Breakdown
Residential property purchase price:
Purchase price bands (£) | Percentage rate (%) | Stamp duty due (£) |
---|---|---|
{{row.l}} | {{row.p}}% | {{row.v}} |
Calculations are based upon the acquisition of your new Miller home as your sole residence and do not take into account any higher rate of Stamp Duty Land Tax which may be due on additional properties. Stamp Duty Land Tax is a self-assessed tax and this calculator is for guidance purposes only.
Calculations are based upon the acquisition of your new Miller home as your sole residence and do not take into account any higher rate of Land and Buildings Transaction Tax which may be due on additional properties. Land and Buildings Transaction Tax replaced stamp duty in Scotland on 1 April 2015. This calculator is based upon the rates in force from 15 July 2020. Land and Buildings Transaction Tax is a self-assessed tax and this calculator is for guidance purposes only.
We are taking you to Mortgage Advice Bureau
By clicking the button below, you are leaving Miller Homes' website and being redirected to Mortgage Advice Bureau, who can put you in touch with advisers who could give you free guidance on finding a mortgage.
Sorry, something went wrong while opening Mortgage Advice Bureau
You can also discover more advisers who could help you find the best mortgage for you and give you free independent guidance on our website.